

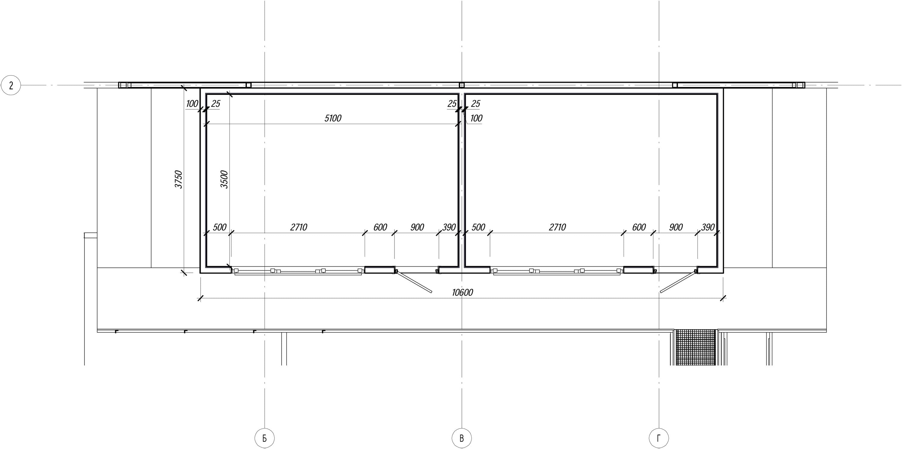
Вагончик размерами 3,8 на 10,6 метров. Перекрытие шириной профиля 200 мм (профиль ПП200 по прайсу). Стены ПП100 высота панелей 2,55 метра. Кровля плоская профиль ПП100. Профиль обрешеточный ПШ40. Винтов самонарезающих для сборки ЛСТК потребовалось 3 500 штук. Вес каркаса ~ 1 400 кг.
Преимущества вагончиков-бытовок из ЛСТК:
Лёгкость и прочность: ЛСТК имеют высокий показатель прочности на изгиб и растяжение, что позволяет создавать легкие и надежные конструкции.
Быстрая сборка: Вагончики-бытовки из ЛСТК собираются быстро и легко, что экономит время и затраты на строительство.
Долговечность: Оцинкованные стальные профили устойчивы к коррозии и другим внешним воздействиям, что обеспечивает длительный срок службы.
Огнестойкость: ЛСТК имеют низкую теплопроводность и не поддерживают горение, что повышает пожаробезопасность конструкции.
Экологичность: Вагончики-бытовки из ЛСТК являются экологически чистыми сооружениями, которые можно перерабатывать после окончания срока эксплуатации.
Вагончики-бытовки из ЛСТК широко используются для различных целей:
Временное жильё для рабочих на строительных площадках и в полевых условиях.
Бытовые помещения для хранения инструментов, материалов и оборудования.
Хозяйственные постройки для хранения садового инвентаря, дров и т. д.
Летние кухни и столовые.
Офисы и торговые точки.
Вагончики-бытовки из ЛСТК могут быть изготовлены в различных размерах и конфигурациях, чтобы соответствовать конкретным потребностям и требованиям заказчика. Если нужна подобная бытовка? Оставьте заявку на почту (меню/контакты) или ЗВОНИТЕ!