
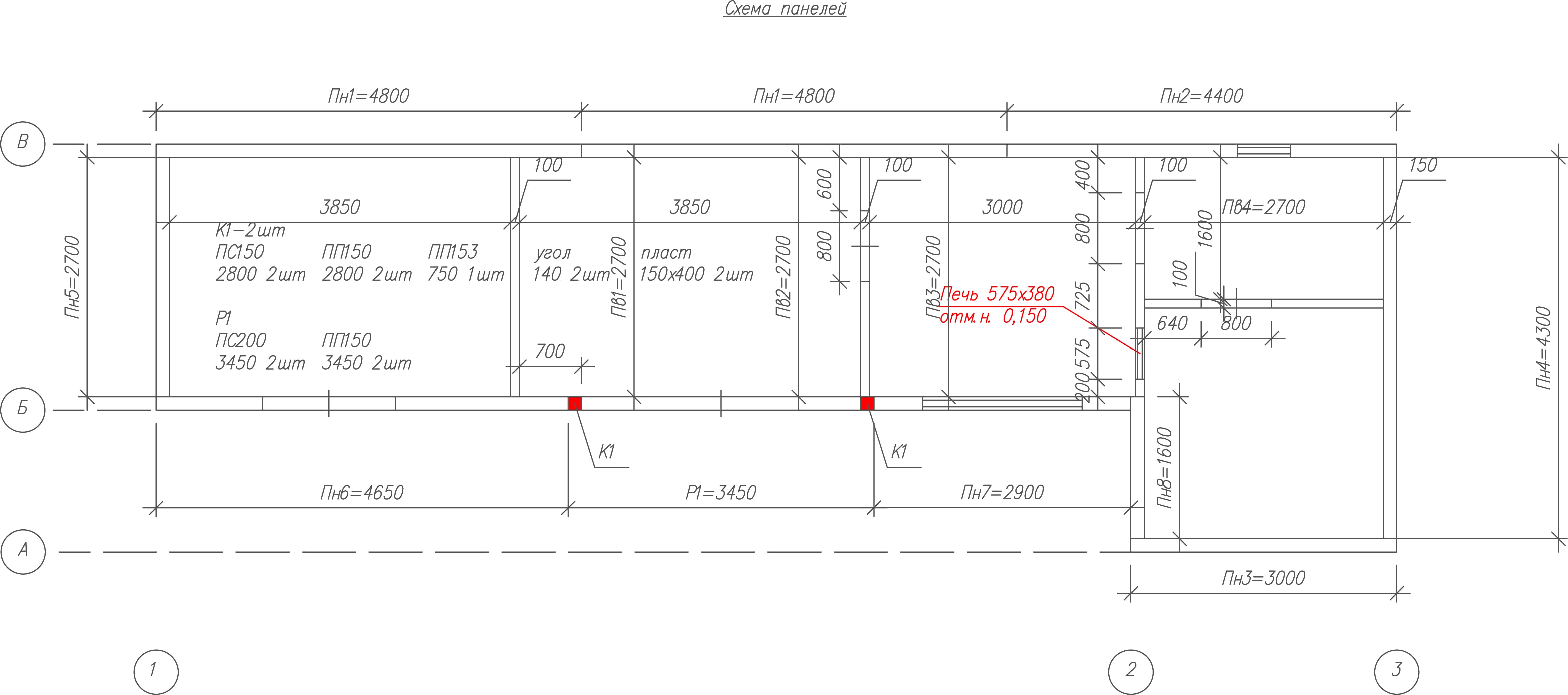
Каркас здания ЛСТК с размерами 14х4х4,6 м;
Стены наружные шириной профиля 150 мм;
Внутренние — 100 мм;
Кровля односкатная с небольшим парапетом.
Интересуетесь хозблоком? ЗВОНИТЕ! Изготовим и соберём, по вашим размерам.

Каркас здания ЛСТК с размерами 14х4х4,6 м;
Стены наружные шириной профиля 150 мм;
Внутренние — 100 мм;
Кровля односкатная с небольшим парапетом.
Интересуетесь хозблоком? ЗВОНИТЕ! Изготовим и соберём, по вашим размерам.
Оставьте ваши контактные данные, и наш менеджер свяжется с вами в течение нескольких минут