
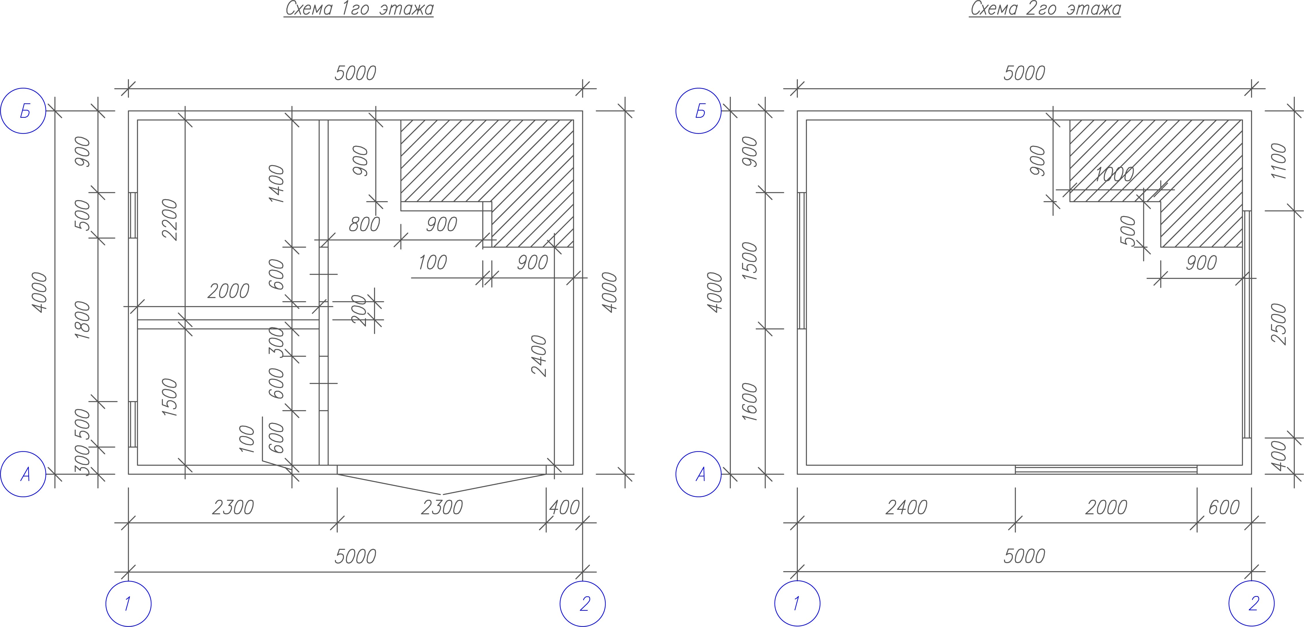
Двухэтажная баня из ЛСТК с размерами в плане 4х5 м;
Стены наружные и внутренние выполнены из профиля шириной 100 мм;
Перекрытие междуэтажное по балкам;
Кровля односкатная с парапетами по периметру здания.
Собрались строить баню? ЗВОНИТЕ!

Двухэтажная баня из ЛСТК с размерами в плане 4х5 м;
Стены наружные и внутренние выполнены из профиля шириной 100 мм;
Перекрытие междуэтажное по балкам;
Кровля односкатная с парапетами по периметру здания.
Собрались строить баню? ЗВОНИТЕ!
Оставьте ваши контактные данные, и наш менеджер свяжется с вами в течение нескольких минут