Проект магазина из оцинкованных ЛСТК, был реализован в г. Абинске, Краснодарский край.
Стоимость ЛСТК каркаса: по запросу;
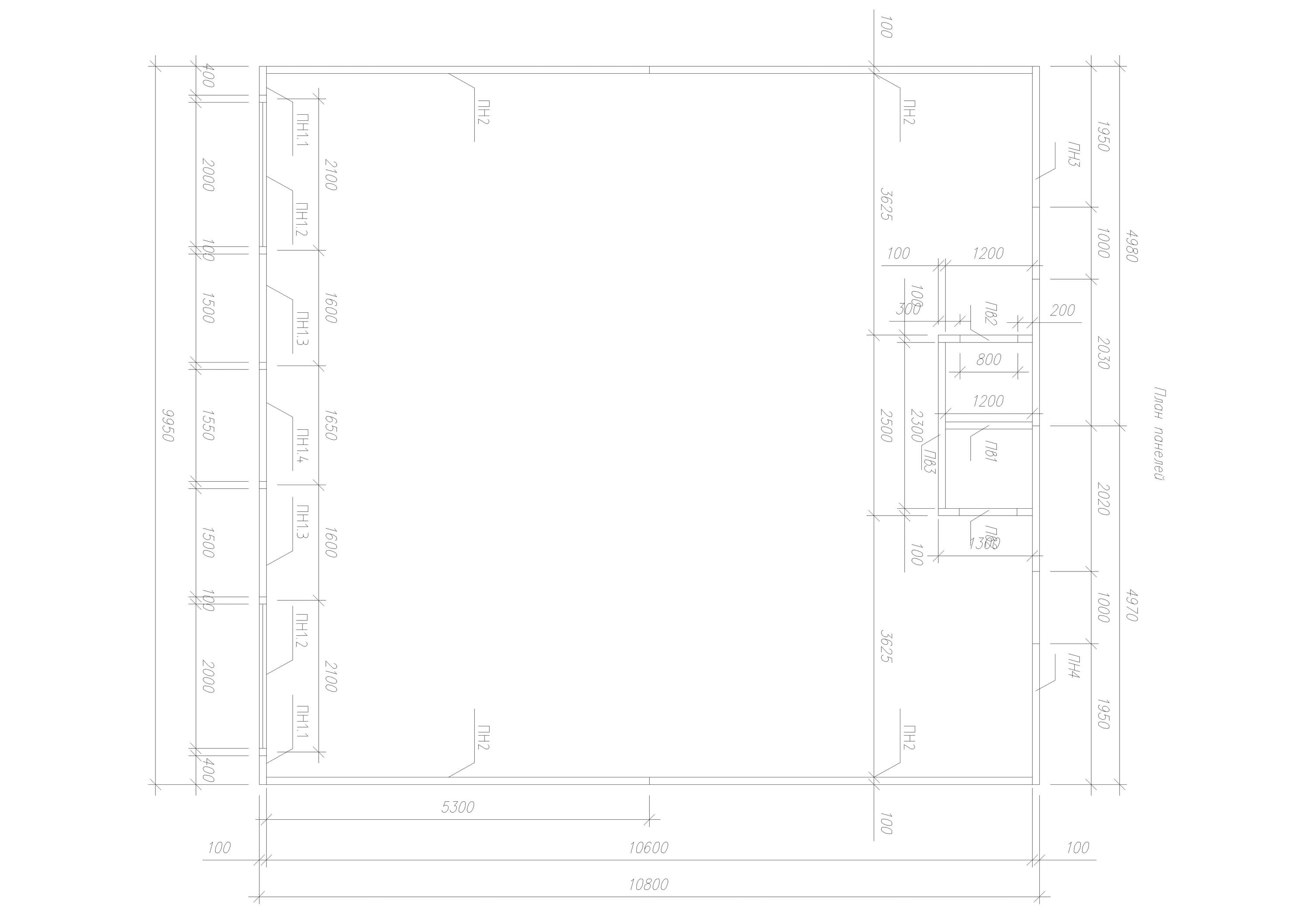
Размеры здания: 10.8 х 9.95;
Общая площадь: 105.47 кв. м.;
Комплектация: Металлокаркас ЛСТК;
Кровля: Односкатная, фермами.
Строительство магазина размером ~ 10 на 10 метров из ЛСТК представляет собой проект, который сочетает в себе функциональность и экономичность. Вот основные аспекты, которые следует учесть при планировании такого магазина:
Проектирование: Необходимо разработать детальный проект, который будет учитывать все архитектурные и инженерные требования, а также соответствовать местным строительным нормам и стандартам.
Фундамент: Для ЛСТК подходит лёгкий тип фундамента, так как конструкции имеют меньший вес по сравнению с традиционными материалами. Возможно использование ленточного или столбчатого фундамента.
Каркас: Основой магазина будет служить каркас из ЛСТК, который обеспечит необходимую прочность и устойчивость здания.
Кровля и стены: Можно использовать различные варианты покрытий для кровли и стен, включая профнастил, сэндвич-панели или другие современные материалы, обеспечивающие хорошую теплоизоляцию.
Инженерные системы: Важно предусмотреть системы отопления, вентиляции, электроснабжения и водоснабжения, а также систему пожарной безопасности.
Внутренняя отделка: Внутреннее пространство магазина можно спланировать таким образом, чтобы оно было удобным для покупателей и функциональным для персонала.
Внешний вид: Фасад магазина можно оформить в соответствии с корпоративным стилем и сделать его привлекательным для посетителей.
Разрешительная документация: Перед началом строительства необходимо получить все необходимые разрешения и согласования.
Эти шаги помогут вам создать магазин из ЛСТК, который будет не только экономичным и быстрым в возведении, но и комфортным для покупателей и персонала, а также привлекательным с точки зрения дизайна. Если у вас есть вопросы по поводу каркаса ЛСТК, его производства и монтажа, мы всегда готовы вам помочь!
Собрались строить магазин? ЗВОНИТЕ!
