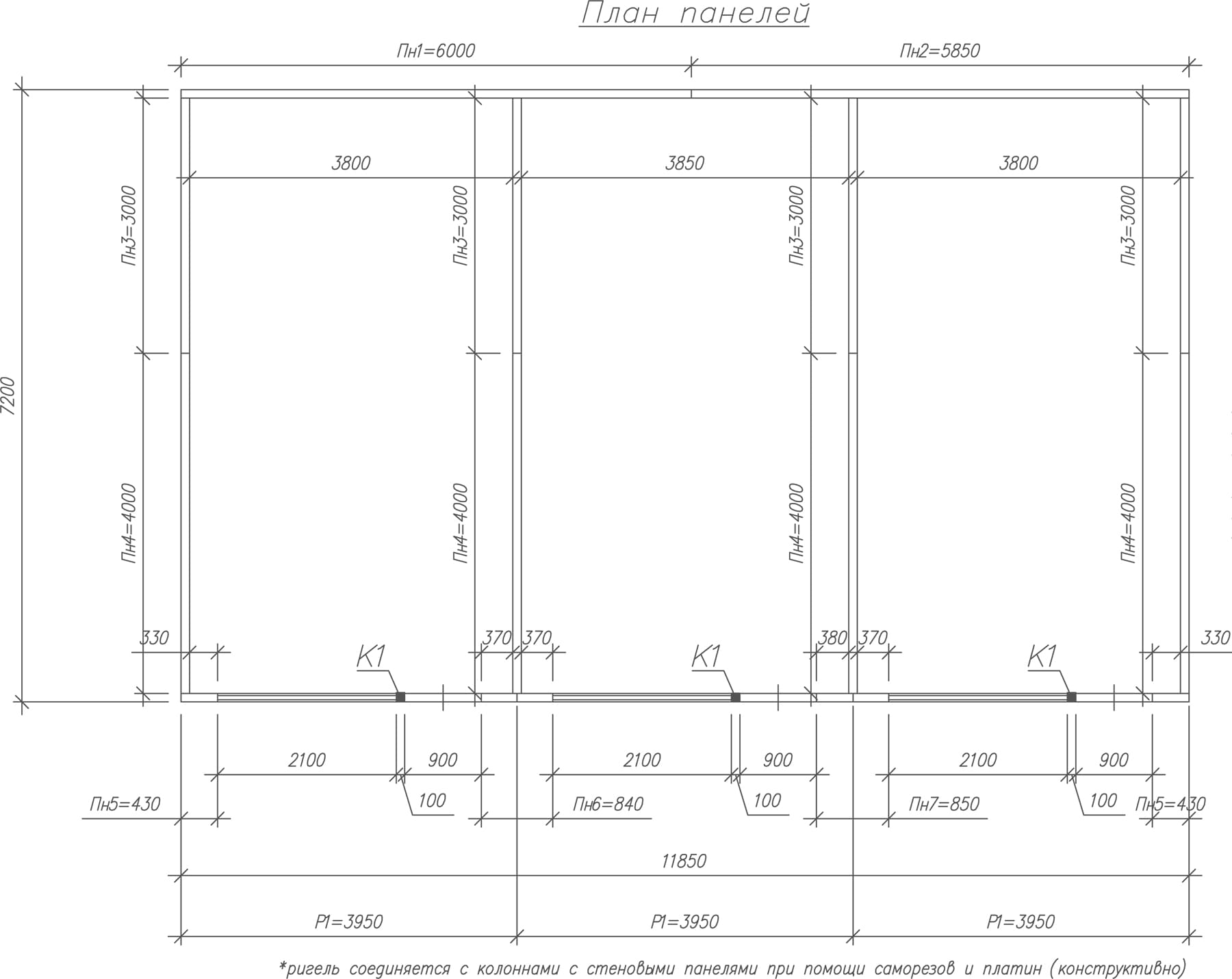
Магазин с размерами 7,8 х 11,85 м;
Перекрытие на ОТМ 0,000;
Стены наружные и внутренние шириной профиля 100 мм;
Колонно-ригельная система для организации входной группы;
Кровля односкатная по фермам;
Парапеты с торцов;
Обрешеточный профиль на кровлю с шагом 600 мм.
Стоимость ЛСТК магазина: по запросу
Пишите или ЗВОНИТЕ!
