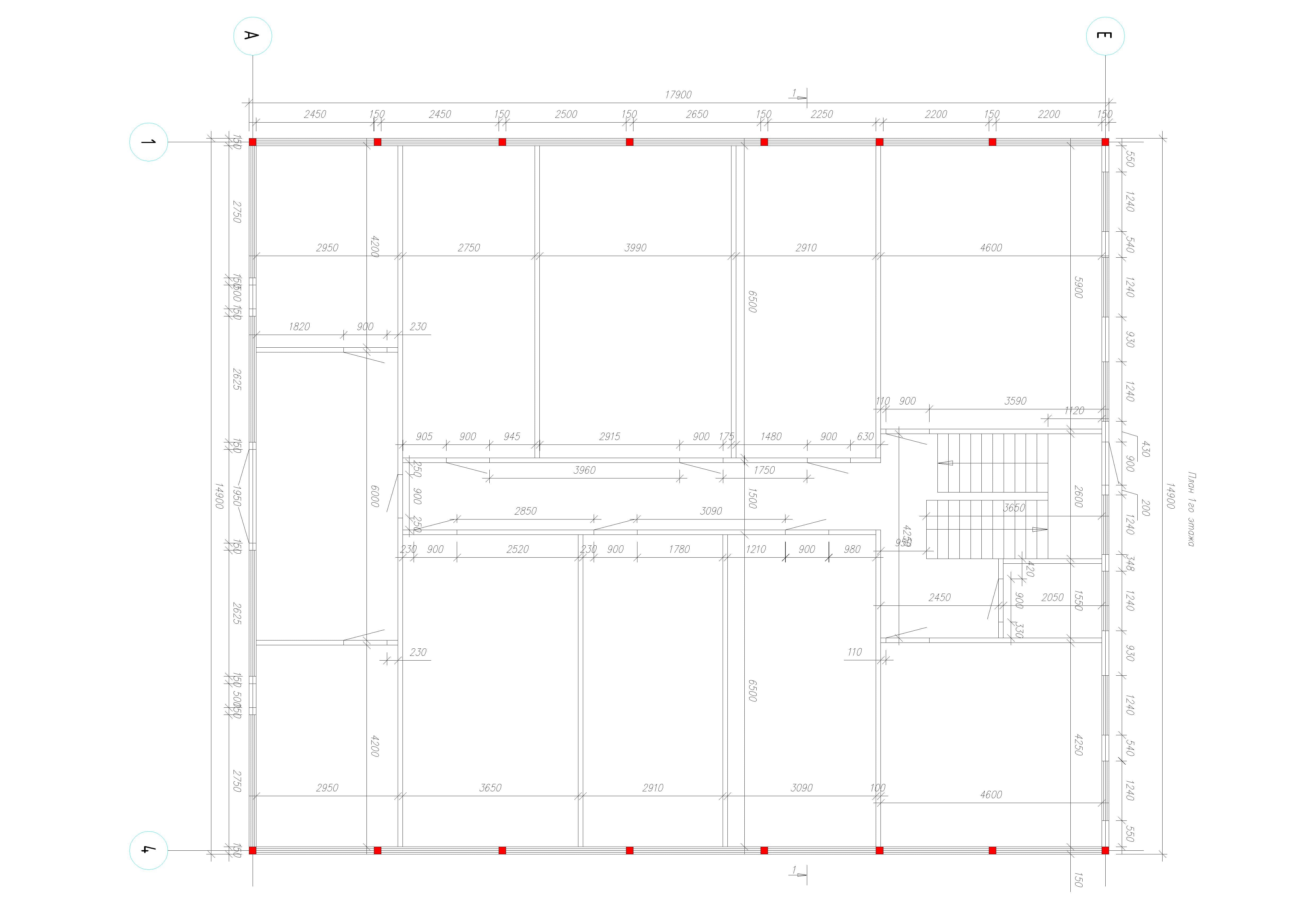
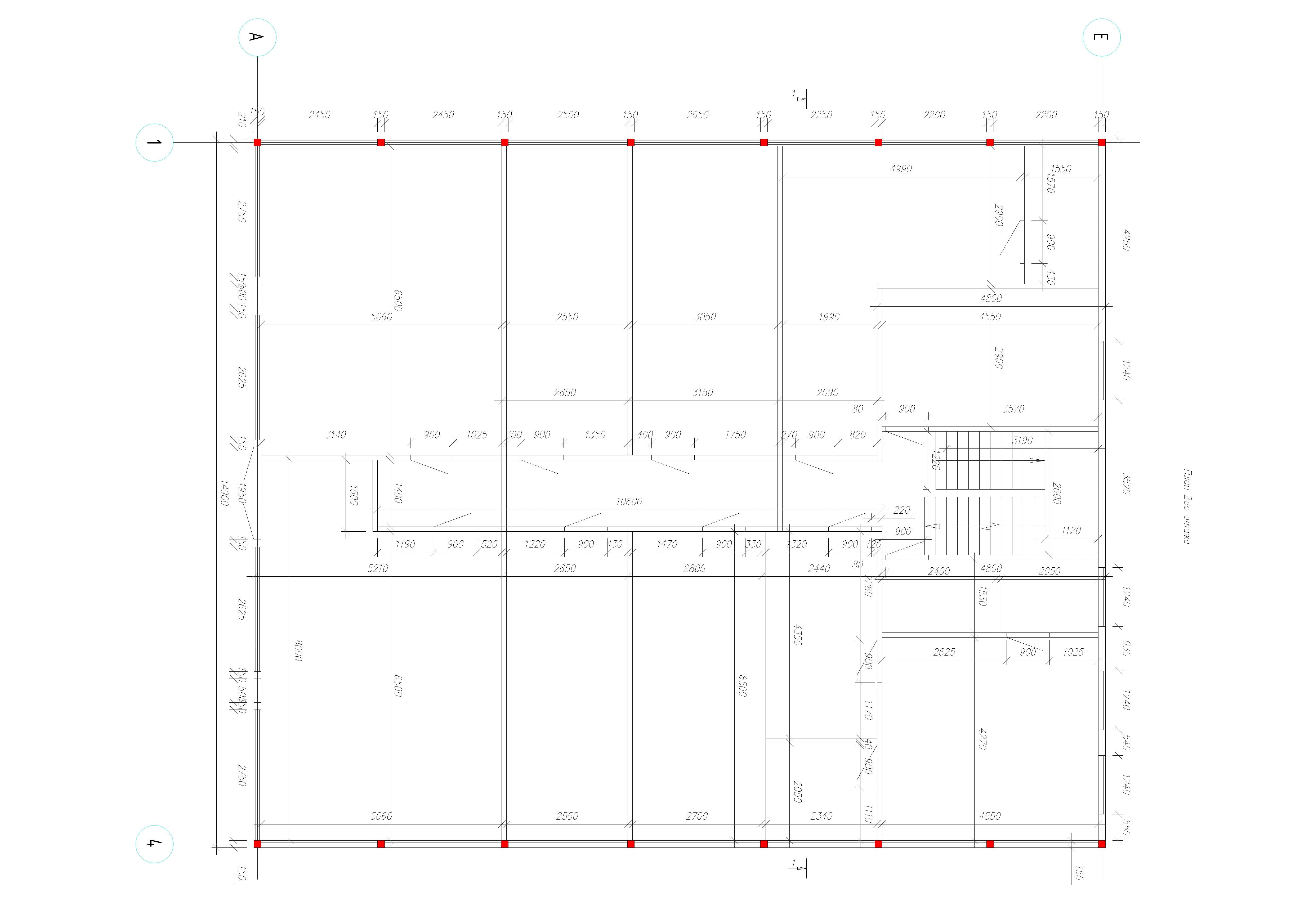
Двухэтажное здание размерами 15х18, высота этажей 3,2 и 2,9 метра. Место застройки данного проекта Севастополь, Крым. Кровля односкатная с длиной ската 18 метров. Высота парапета 1,2 метра. Лестница так же выполнена из ЛСТК. Если у вас есть необходимость в подобном (или этом) здании - произведём и поставим. Цена по запросу!



