

Одноэтажный дом из ЛСТК
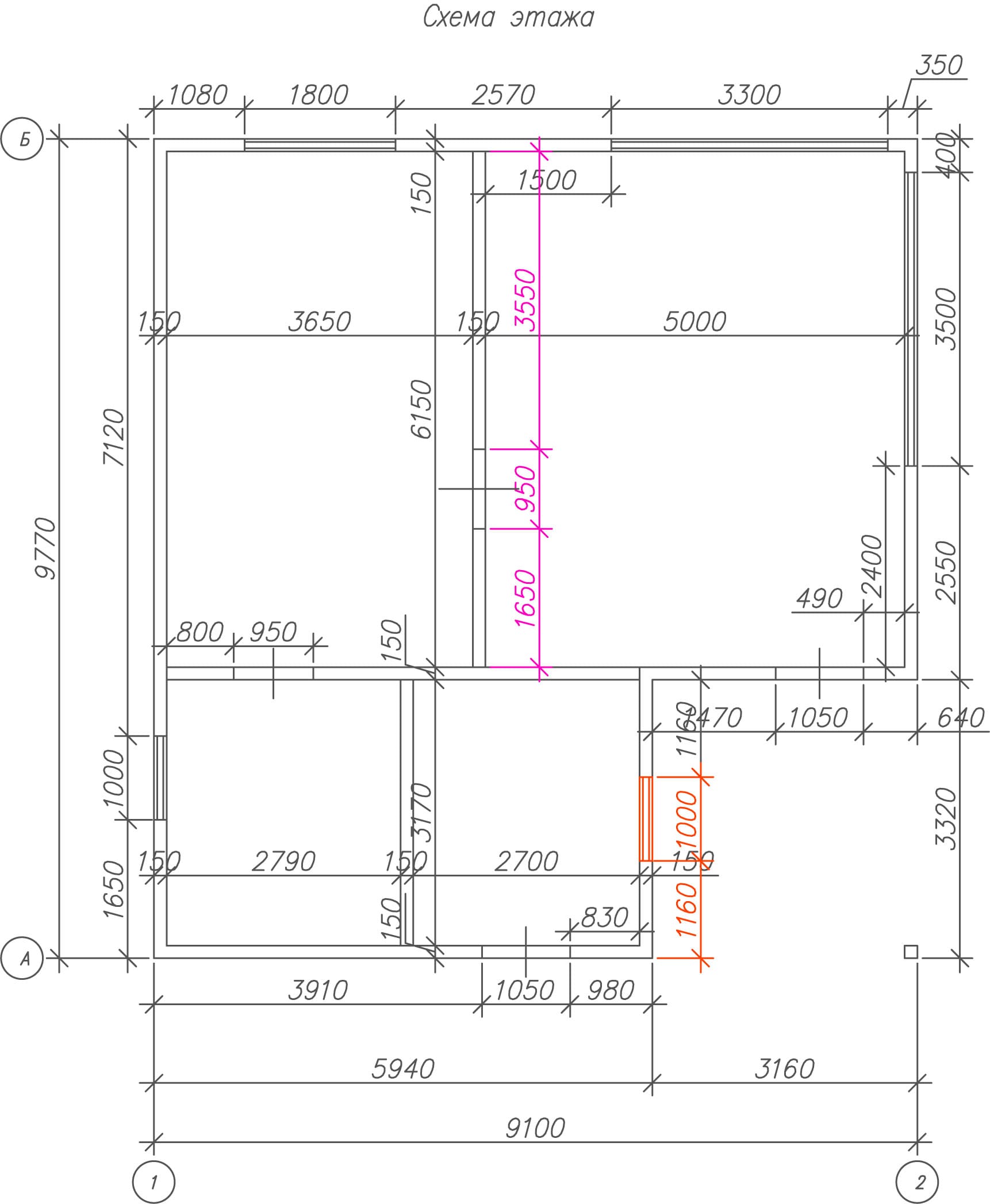
Жилой дом 9,1 х 9,71 метров.
Стены шириной профиля 150 мм.
Кровля вальмовая по фермам.
Колонно-ригельная система для устройства крыльца.
Обрешёточный профиль на кровлю под профильный лист.
Металлокаркас ЛСТК 2 874,77 кг.
Орешётка кровли шляпным профилем ПШ40
Винтов самонарезающих 11 500 штук.
Заявку на расчёт стоимости ваших метражей оставляйте на lstkrf@mail.ru