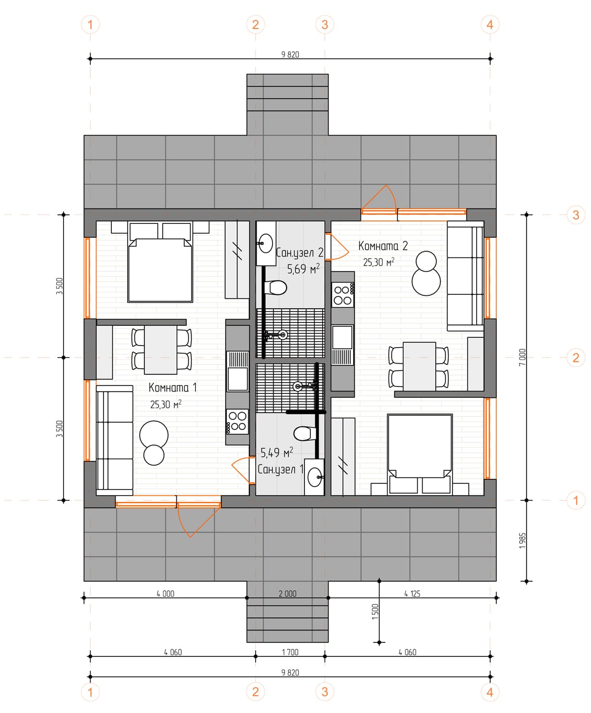
Черкесский дом 7,0х9,8 м.
Металлокаркас ЛСТК:
Полы на отм 0,000;
Стены наружные шириной профиля 150 мм;
Стены внутренние — 100 мм;
Кровля вальмовая по фермам (прямой потолок);
Колонны и ригели для опор кровельных ферм;
Обрешеточный профиль на кровлю с шагом 300 мм.
Понравился дом в данном стиле? ЗВОНИТЕ!

